
2026年1月よりグループホームぽかぽか2棟目と成ります大日B棟がオープンしました!
グループホームぽかぽか 大日B棟は男性専用の7居室となります。
場所はJR総武本線「四街道駅」からバスで5分です。
施設周辺環境
【グループホームぽかぽか 大日棟周辺施設】
・徒歩6分:わくわく広場・セカンドストリート
・徒歩7分:マクドナルド
・徒歩9分:バス停
・徒歩7分:スーパーマーケット・ドラッグストア
・徒歩13分:イトーヨーカドー四街道店
・徒歩15分:四街道駅(総武本線)
※施設・周辺環境の動画・写真は現在準備中です。
施設の紹介
画像は2026年1月に撮影したものです。一部現状と異なる場合がございます。お気軽にお問い合わせください。
室内写真
大日B棟 玄関
大日B棟 台所&リビング
大日B棟 台所
大日B棟 台所
大日B棟 リビング
大日B棟 1階洗面室&お風呂
大日B棟 お風呂
大日B棟 二階洗面室
大日B棟
大日B棟
大日B棟 居住スペース①
大日B棟 居住スペース②
大日B棟 居住スペース③
大日B棟 居住スペース④
大日B棟 居住スペース⑤
大日B棟 居住スペース⑥
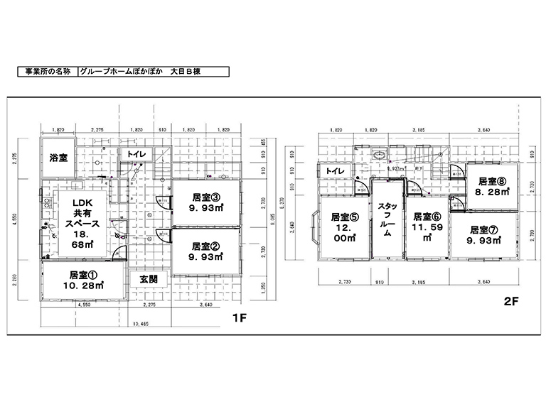
大日B棟 平面図
